Projects /

Villa Giusy

Villa Giusy

Interior Architecture

designed by the sun

Latiano, ITALY

Year: 2004/10
Sector: residential
Client: Private
Budget: € 500.000
Surface: 300 m2
Activity: Preliminary, detail and final design

Phase: Completed

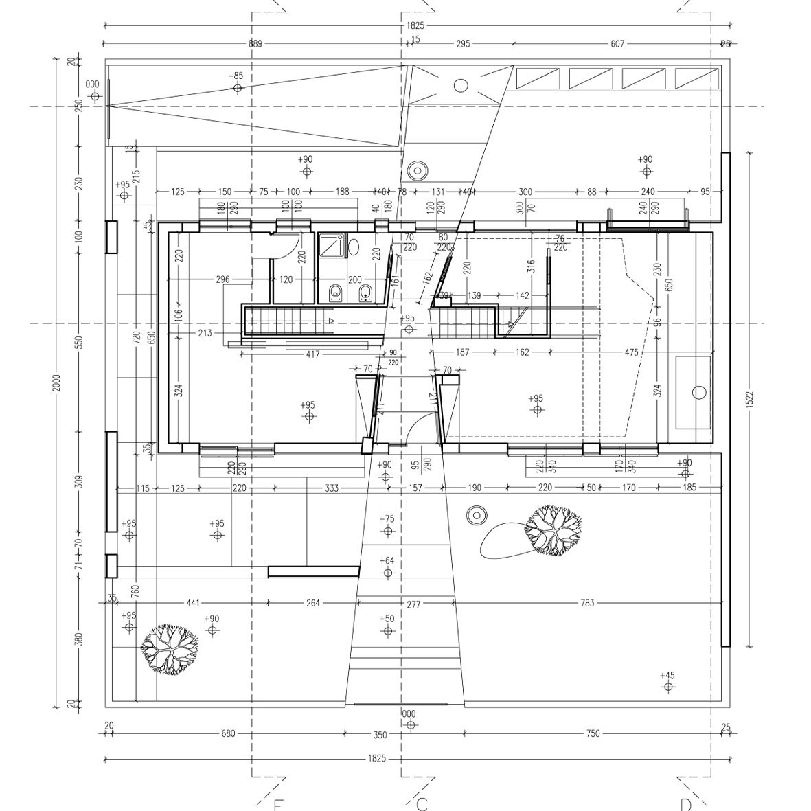
This project is a small residence built in Puglia, southern Italy, in a small town called Latiano. The project tries to tell a Mediterranean story, made of light, simple materials, and tradition. The house is on two levels, and is characterized by a fascinating double height internal, which is a path to bridge that leads to one of the patios on the second level.

The building consists of a basement and two floors above the ground through an internal vertical distribution system. In the basement are located the tavern served by an internal staircase, a wine cellar, a tool shed, a pantry, a bathroom, the local hydro and thermal power plants, an area reserved for park- ing. This level is put into communication with the garden through an external ramp driveway directly connected to the municipal road on the north side.

At ground level, are localized environments for day- time activities: entry space that develops in double height, the large living space, kitchen-dining area, living area of the bathroom, and laundry, as well as the study . From the entry space, through a scale is pos- sible to reach both the basements that the first level. At the first level, stands the large loft, connected to the bedroom through a walkway that overlooks the entrance area.