
Year: 2005/06
Sector: mixed-use
Client: Al Hamed Group
Engineering: Proger UAE
Budget: € 80.000.000
Surface: 75.000 m2
Activity: Preliminary and detail design
Phase: Approved
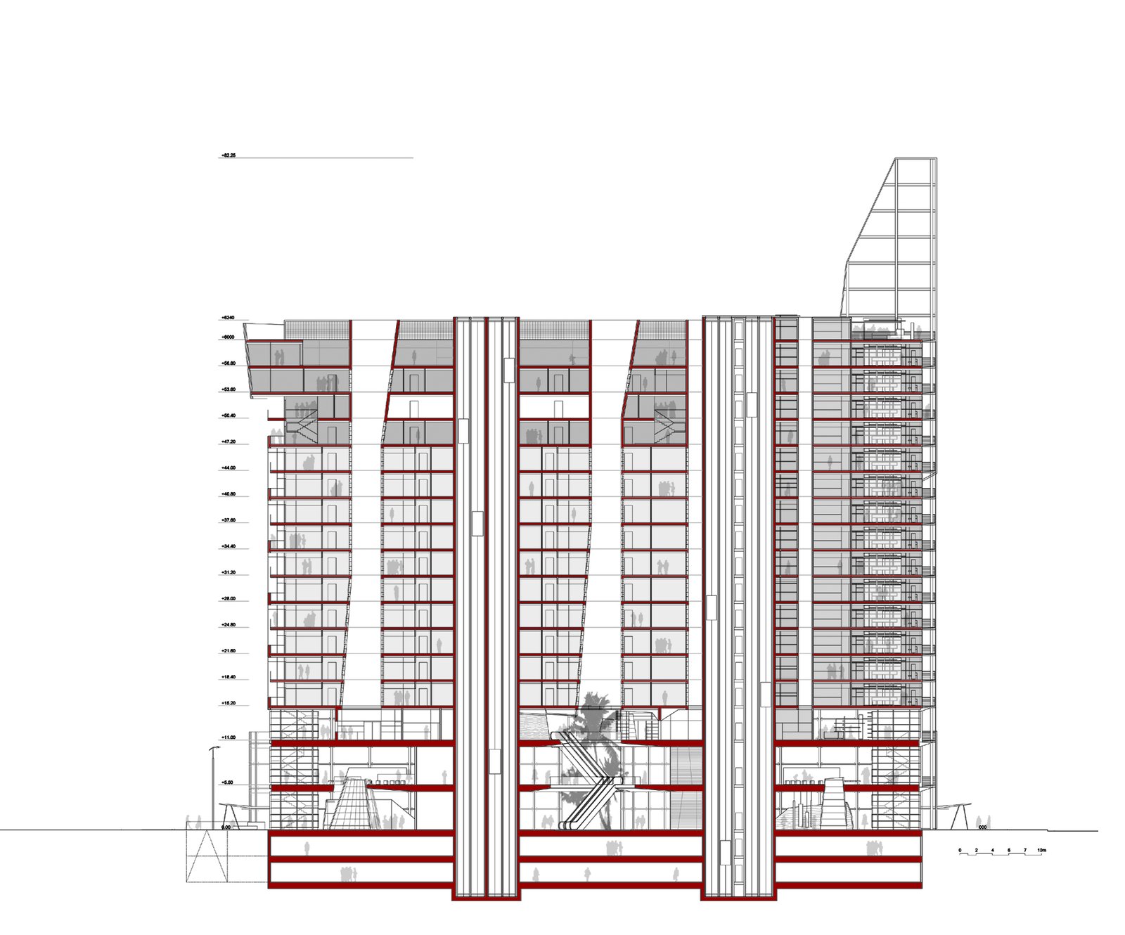
Al Hamed Center is an high rise development in Abu Dhabi. It is mainly an office building for a single prestigious group, with services and some residential floors, to complete in terms of liveability this luxury development.